Свет
Мебель
Искусство
ПРОЕКТЫ
Об авторе
Контакты
Контакты
Об авторе
ПРОЕКТЫ
Искусство
Мебель
Свет
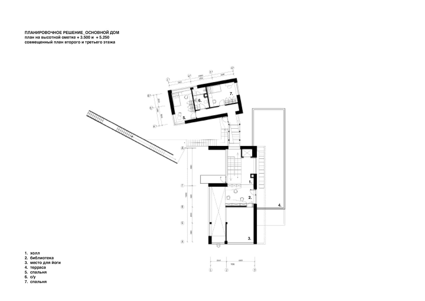
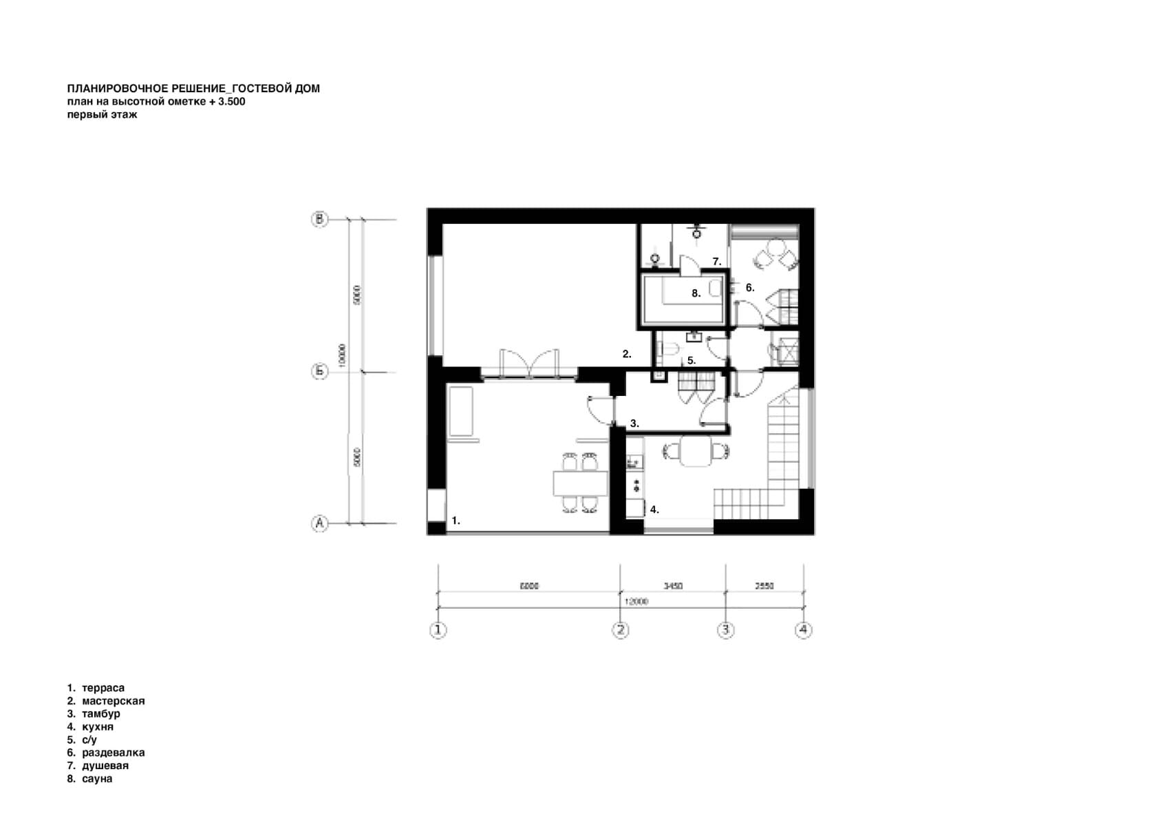
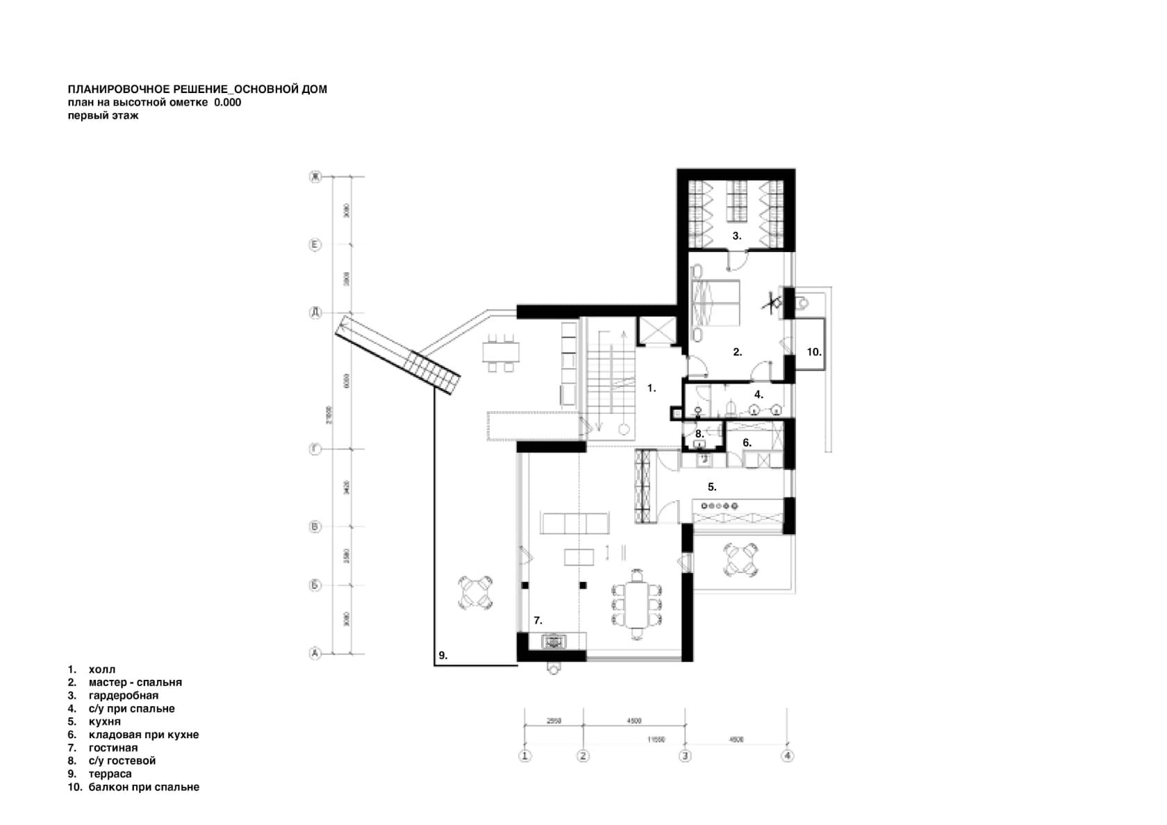
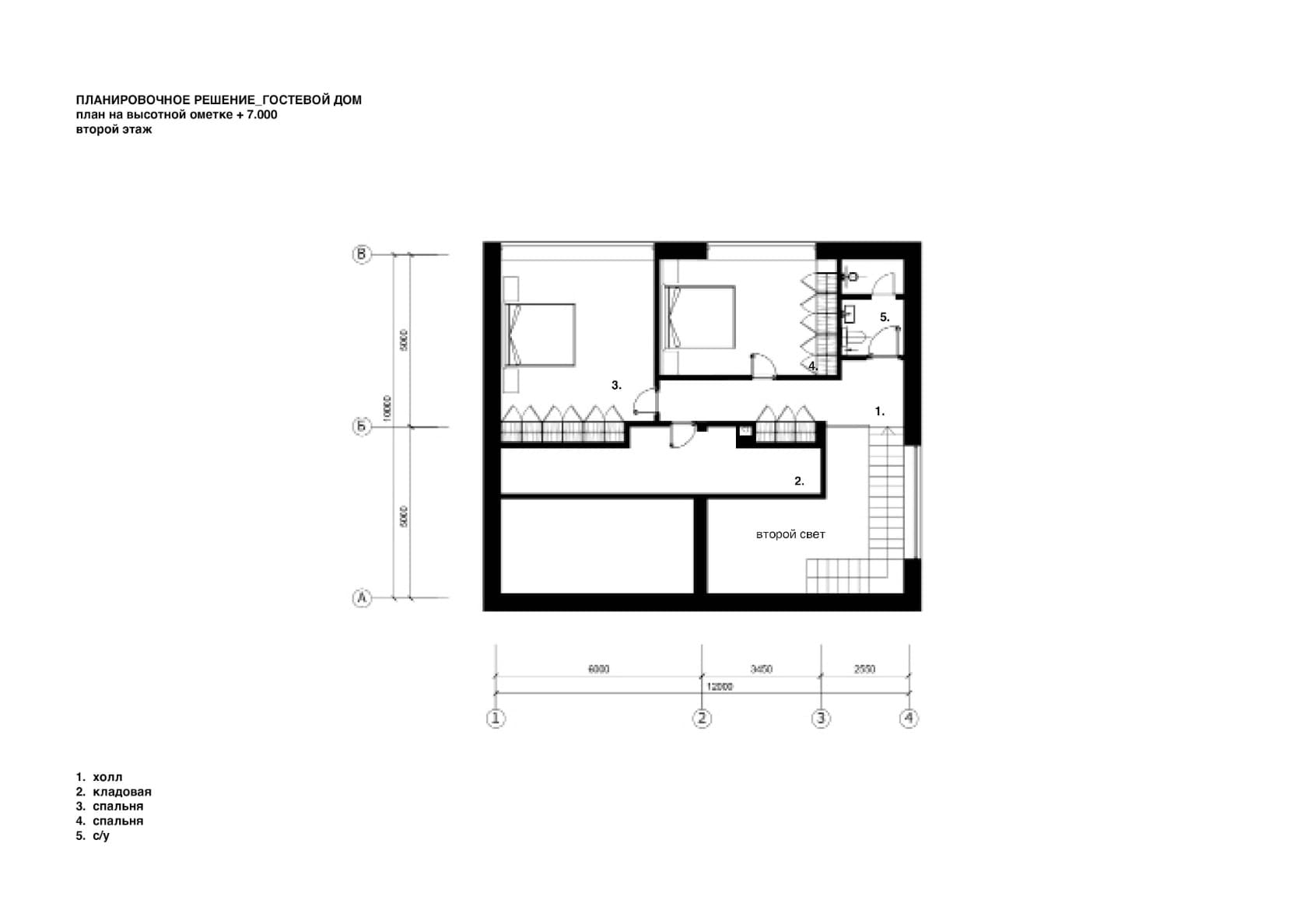
Жилой кластер в пос. Токсово
2024
Ленинградская Область. пос. Токсово
Вернуться на главную