Свет
Мебель
Искусство
ПРОЕКТЫ
Об авторе
Контакты
Контакты
Об авторе
ПРОЕКТЫ
Искусство
Мебель
Свет
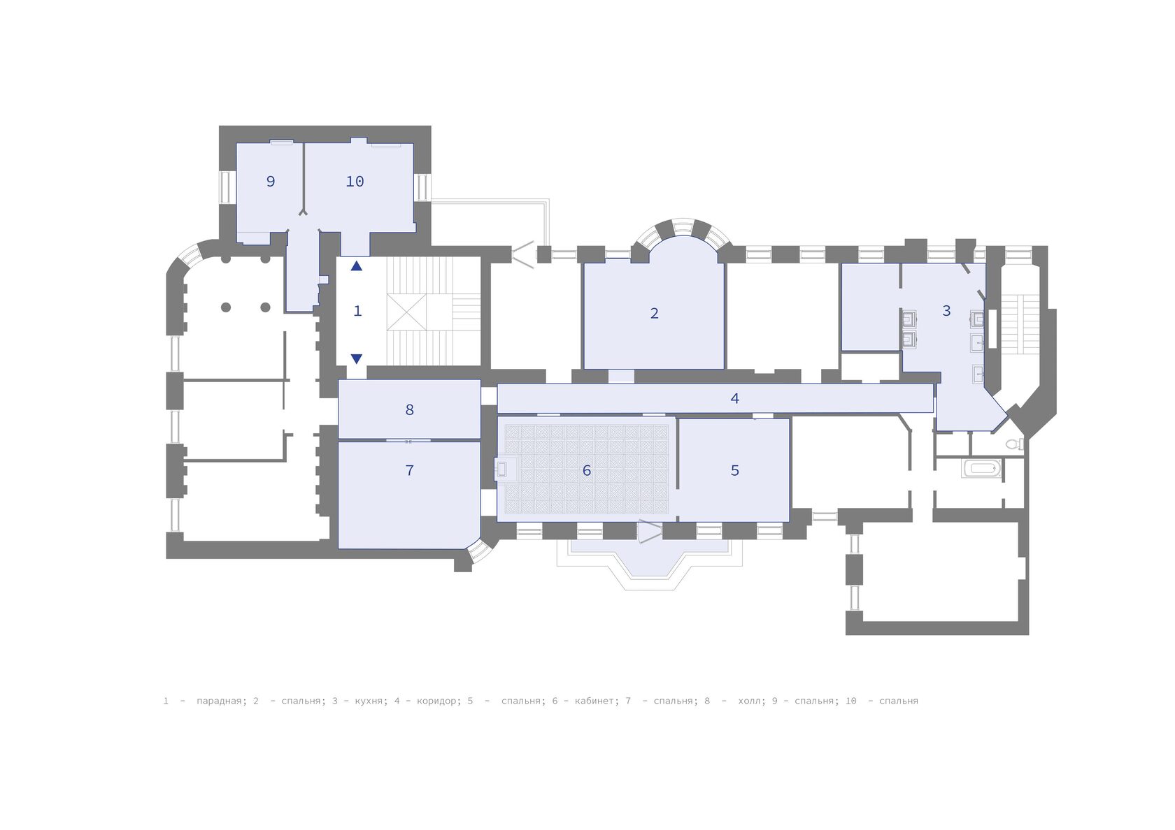
Квартира в доме Эмира Бухарского
2022
Место: С-Пб. Каменноостровский 44 б
Вернуться на главную