Свет
Мебель
Искусство
ПРОЕКТЫ
Об авторе
Контакты
Контакты
Об авторе
ПРОЕКТЫ
Искусство
Мебель
Свет
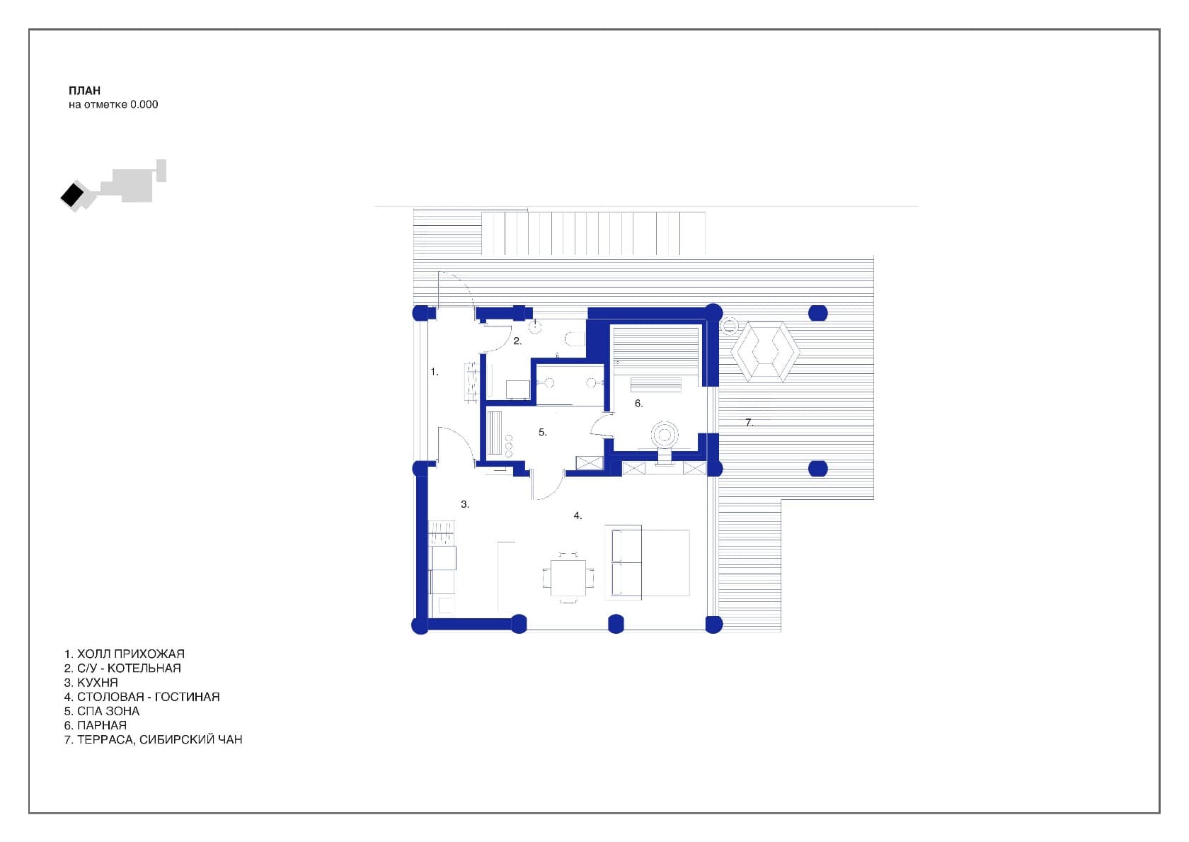
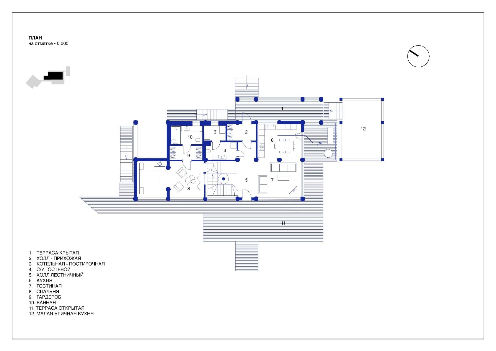
Алтай
2024
Алтай. пос. Седьмое небо
Вернуться на главную